
Más servicios para los barrios: presentaron el proyecto de cloacas para Villa del Parque – zona sur
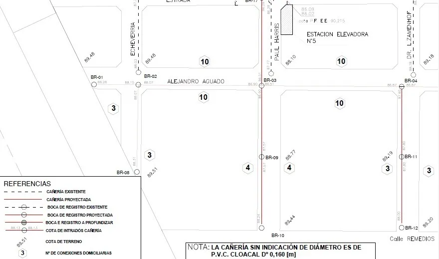
La obra beneficiará a más de 90 hogares y forma parte del Plan de Expansión de Redes de Saneamiento que impulsa el municipio.

La obra beneficiará a más de 90 hogares y forma parte del Plan de Expansión de Redes de Saneamiento que impulsa el municipio.

La intervención se realizó en el barrio Faule y demandó una inversión superior a los 130 millones de pesos. Permitirá mejorar la calidad de vida y el entorno sanitario de la comunidad.

La Municipalidad de Sunchales continúa trabajando en la mejora de la infraestructura urbana. En el día de hoy, se supervisaron los avances de la obra de recambio de cañería cloacal, que ya se encuentra en su etapa final.

Residentes denuncian que intervención de Aguas Santafesinas ha empeorado la situación, provocando el rebalse de aguas residuales en las viviendas y generando preocupación entre los afectados.

Con un 32% de avance y capacidad para más de 3.000 personas, la obra emblemática del Distrito Joven avanza firme y promete convertirse en el escenario indoor más moderno de la provincia.

La situación fue advertida a RAFAELA INFORMA luego de los operativos desplegados por la PDI y equipos policiales en distintos sectores de la ciudad. Las medidas se realizaron tras la balacera que dejó herido a un joven de 18 años. El principal sospechoso, conocido como “Cachete” M., continúa prófugo.

El tradicional teatro rafaelino presenta dos propuestas completamente distintas bajo la dirección de Martín Werlen: un drama íntimo sobre la marginalidad y una comedia filosa sobre vínculos familiares. Dos miradas, dos escenarios y un mismo impulso: mostrar la potencia del teatro hecho en Rafaela.

La situación fue advertida a RAFAELA INFORMA: un patrullaje del Cuerpo Guardia de Infantería terminó con un joven de 26 años detenido y una motocicleta recuperada, luego de que tres ocupantes chocaran y dos escaparan corriendo.

Tras meses de investigación, la PDI detuvo a M.G.D. en un operativo en calle Ramón y Cajal. El hecho conmocionó a Rafaela el pasado mayo, cuando la víctima fue hallada con una herida mortal en el cuello dentro de su vivienda.